(万科高线公园)售楼处-房价走势分析-产品介绍-万科高线公园户型图
扫描到手机,新闻随时看
扫一扫,用手机看文章
更加方便分享给朋友
万科高线公园【营销中心】:028-84385818(预约看房)
【置业顾问】:18613205563(微信同步)
温馨提示:专业一对一热情服务,为了节约您的等待时间,看房请提前致电预约!!!
2025年的成都楼市,已经分化到了极致。
首先是新房和二手房之间的分化,目前新房和二手房成交比例大致是1:2.5,随着供地的减少以及总价的提升,新房的规模还会锐减。
未来的新房,与绝大多数人没有关系。
未来的新房,贵并且也是受欢迎的。
自从新房市场产品迭代之后,和二手房市场实现了价格分层,但到现在,这种价格区分越来越夸张。
然后是新房和新房之间的分化。
同一个地段,一街之隔,相同配套,迭代新房卖3.6万/㎡,未迭代新房2.7万/㎡,差价9千/㎡,10年左右的二手小区则只能卖1.8万/㎡,价差50%!
二手房无限贬值,迭代新房无限哄抢。
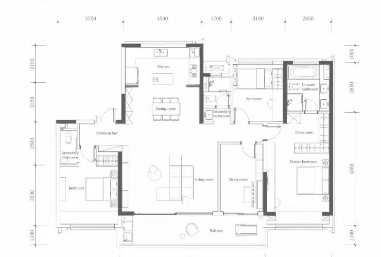
面积:175-188-199平,总价区间460-530万,层高:188平17层 175、 199平24层
层高:3.1✅梯户比:2T2户✅拿地时间:2020.07.31✅公摊:18% 22%✅交房时间:3/6地块2024年11月✅物业费:4.2元/平✅总户数:1228✅产权年限:70年✅建筑类型:小高层✅占地面积:141333✅建筑面积:339700✅容积率:2.23✅绿化面积:49465.5✅绿化率:35%✅总车位数:3560✅地下车位数:3560✅车位配比:1:2.23✅装修标准:精装修✅装标:2499/㎡

占地:289亩(站成一体化947亩)2低容积率:仅2.233超大公园绿地:60亩4自带配套:🚇地下3层无缝换乘地铁沉浸式商业步行街+Future Market6大主题公园🌴空中花园走廊2个幼儿园1个邻里中心


在项目的整体布局上,万科高线公园住宅外围基本被公园包围,社区则像“藏”在公园里;南侧的写字楼、高线客厅等商业配套迎接行政学院TOD地铁站的人流;沿楠木街分布的商业街和中心位置的高线邻里中心、LINK剧场则将合力营造有“烟火气”的社区,并解决业主的日常商业购物需求。



万科高线公园【营销中心】:028-84385818(预约看房)
【置业顾问】:18613205563(微信同步)
温馨提示:专业一对一热情服务,为了节约您的等待时间,看房请提前致电预约!!!
免责声明:
以上内容仅作为邀约邀请,涉及的图片为部分区域实拍图和美学畅想图,具体内容请以现场公示和合同约定为准;本文部分资料、部分图片来源于网络,如有侵权请联系我们删除。
声明:本文由入驻焦点开放平台的作者撰写,除焦点官方账号外,观点仅代表作者本人,不代表焦点立场。
