成都中海锦叁号院最新房价-中海锦叁号院售楼电话-户型图现房销售丨周边配套-交通-优劣势-位置-未来发展-小区解售楼热线丨项目情况丨户型图资深顾问揭秘
扫描到手机,新闻随时看
扫一扫,用手机看文章
更加方便分享给朋友
4001816261
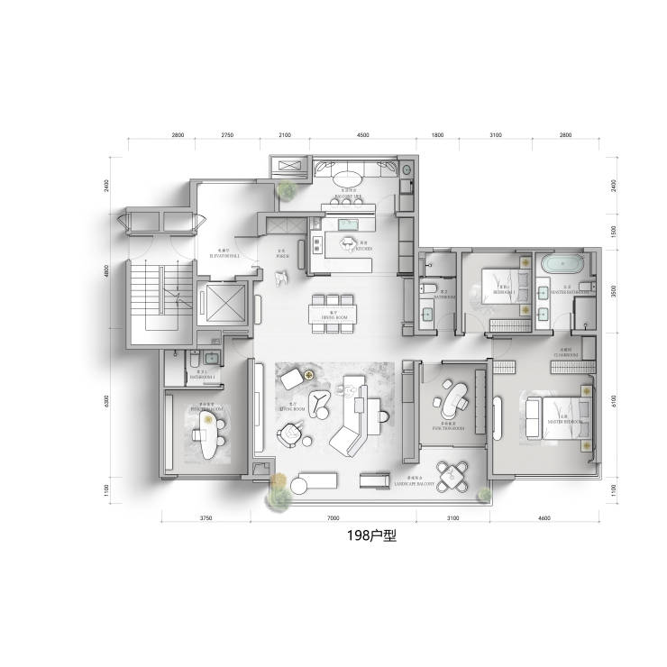
户型解析:
花园平院(198㎡-249㎡)
位于项目中轴线上,其中建面约 249㎡户型为一层一户配置,叠加室内超百平的私人会所式享受,彰显主人的尊贵与私密,为业主提供了宽敞舒适的居住空间和高端的生活体验。
花园洋房(143㎡-170㎡)
高低错落地排布于静谧的园林中,多一方阳台设计使南北皆享四季景观趣味;超大面宽的方 / 横厅设计与LDKG一体化设计,让室内外空间更通透,家庭成员互动更密切,营造出温馨的家庭氛围。
叠院(290㎡-335㎡)
位于咫尺城市公园(规划中)的西侧,退台式露台设计,承袭西贵公园院居的尊贵基因,确保每一户叠院业主都能享受低密生活空间及隐奢居住体验。
声明:本文由入驻焦点开放平台的作者撰写,除焦点官方账号外,观点仅代表作者本人,不代表焦点立场。
