成都嘉禾兴城和颂资深顾问揭秘现房销售丨-交通-优劣势-位置-未来发展-小区解售楼热线丨项目情况丨户型图
扫描到手机,新闻随时看
扫一扫,用手机看文章
更加方便分享给朋友
4001816261
· 首批解禁:2024年10月14日前购买的商品住房,取得产权证后即可上市交易;
· 二手住房松绑:2026年1月1日起,同期取得产权证且仍在限售期的二手房取消转让限制。
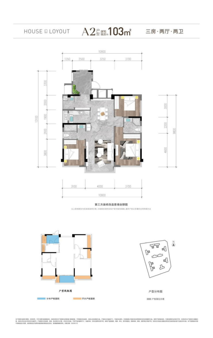
【项目基础信息】
在售面积:建面约103-108-119-143m² -顶跃
装修情况:精装
在售楼栋:即将首开,尽请期待
容积率:2.0
单层层高:约3.1米
交房时间:2026(待定)
绿化率:35%
产品:小高层(11层)
梯户比:2T3/2T2
车位比:1:1.12

【项目户型图】




【品牌介绍】国匠品质嘉禾实力 强强联合共同开发
嘉禾兴城和颂,由国企“空港兴城”和民企“嘉禾兴地产”合作开发,为业主创建的3.0新时代作品(在原有的嘉禾-华府、嘉禾-桂府、嘉禾-宸府、嘉禾-滨湖颂的基础上再次进行升级优化)。嘉禾兴深耕地产行业洞悉成都百姓需求,凭借过硬的专业能力和资金实力,为更多家庭提供高质价比产品。在国企与民企顶层合作下,嘉禾兴城和颂将助推板块人居焕新蜕变,呈现实力与匠心的深度融合、品质与细节共美的崭新未来!

【区域介绍】接棒人居迭代梦想 西南品质纯居住区
嘉禾兴城和颂,地处新双楠&九江未来公园社区,是成都计划“十四五”期间,首批启动建设的25个未来公园社区之一。新双楠,天赋优越的地理位置,上邻西贵,右邻南富,将接棒武侯新城,成为成都西南品质纯居板块之一,西贵记忆中的品质生活,将在新双楠再度启幕。

【教育配套】多元商业品质配套 丰富教育菁英未来
武侯大道到双楠大道的两侧分布了各类城市级商业体:大悦城、吾悦广场、武侯万达、山姆会员商店(武侯店)、时代奥特莱斯、星荟天地、双流万达、城南优品道、海滨城。本案约1.5公里范围内教育丰富,有九江新城初级中学、九江新城小学、九江蛟龙幼儿园。区域还有规划中的双流实验小学。而双流本是教育强区,在本案约5.5公里范围内,有四川省重点中学双流中学,和连续五届荣获“中国百强中学”的棠湖中学。
【生态配套】近邻双公园生态区 绘就鲜氧生态画卷
本案紧邻“环城生态区”,两大公园萌宠乐园、凤求凰公园坐落于本案的东侧。而按照规划,板块还将新增3.8公里城市绿脉,串联环城生态公园与未来社区。未来公园社区将以“绿”为底,绘就公园城市生态画卷。

【交通配套】三维立体交通体系 门户枢纽衔接世界
板块交通丰富便捷,两横(双楠大道、龙渡路)三纵(绕城高速、千子门路、龙桥北路)便捷快速通达全城。本案近享双轨体系(地铁3、19号线),连接主城和双流中心城区,快速实现生活、通勤、娱乐,实现多空间交互可通。

凝炼跃级改善园林 未来艺术生活社区
嘉禾兴城和颂用“一环两中庭”的景观格局,缓缓铺叙美好生活的自然底色。在美丽如画的景观中,还配置有下沉式鎏金会所。作为“改善3.0时代”的标配,会所业态包含室内泳池、健身房、瑜伽室、棋牌室、台球室。业主可在此完成运动、休闲、会客、聚会等多样需求。

声明:本文由入驻焦点开放平台的作者撰写,除焦点官方账号外,观点仅代表作者本人,不代表焦点立场。
